Property Details
A very rare offering to the marketplace with three brand new retail premises situated in the exciting new Pipi Development Bondi Beach.
Pipi’s beautifully sculpted façade is a study in folded planes and angled blades with the building comprising of 29 premium luxury apartments. Located across from the water of the world famous Bondi Beach and surrounded by exceptional retailers including Ravesis, Gusto Espresso, Tigerlily, Jack & Jack, Paris Café, Platypus Shoes and more. Retail operators have the choice of taking one, two or three lots which would suit an array of uses such as Retail, Beauty, Hair Salon, Food & Beverage and more (STCA).
With an average of 1 million visitors coming to Bondi Beach annually along with the devoted locals these retail lots offer great exposure in one of the most sought after locations in Sydney with long lease terms available, don’t miss out on this unique opportunity.
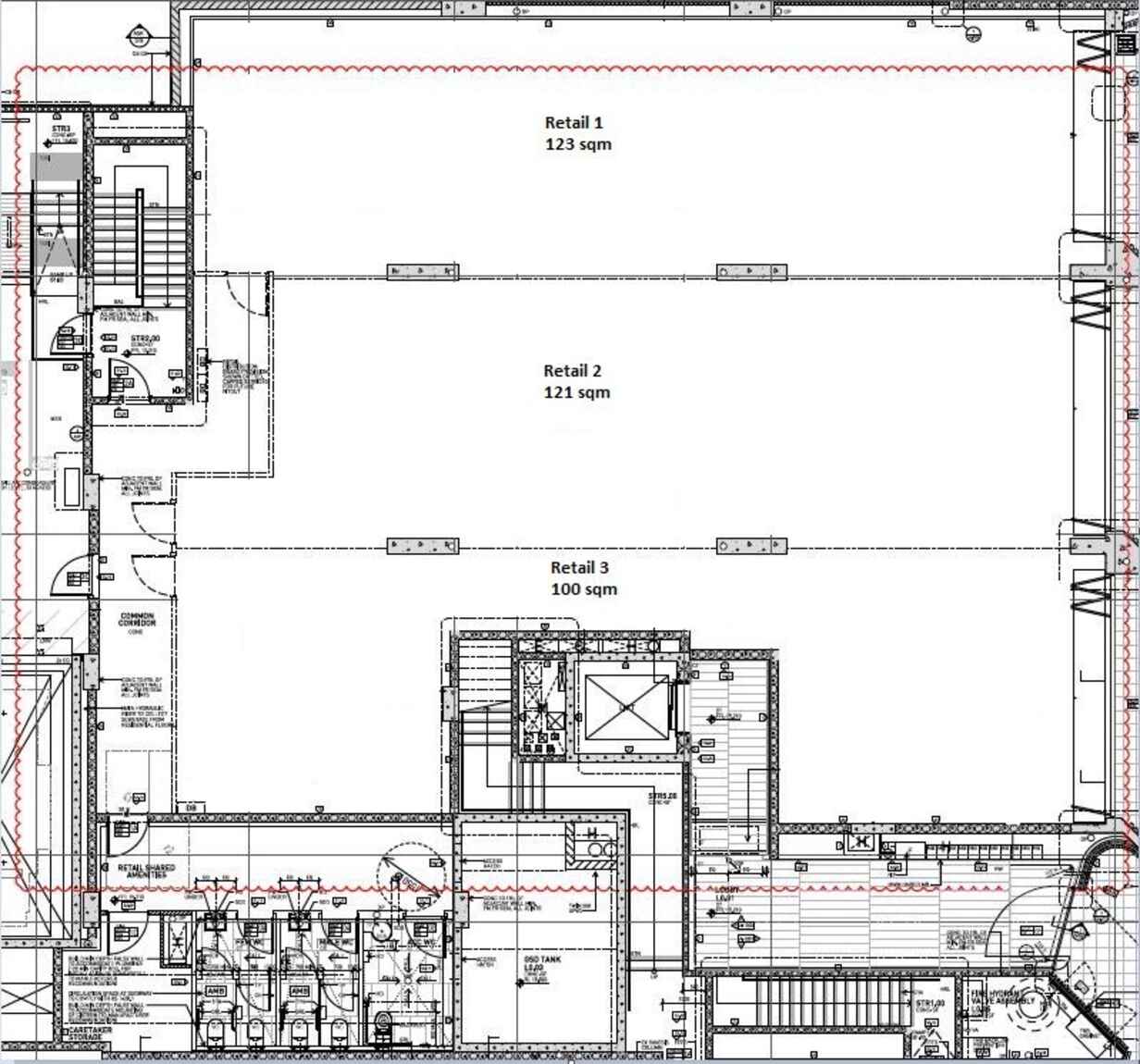
Areas Available:
Retail 1 of approx. 123 sqm
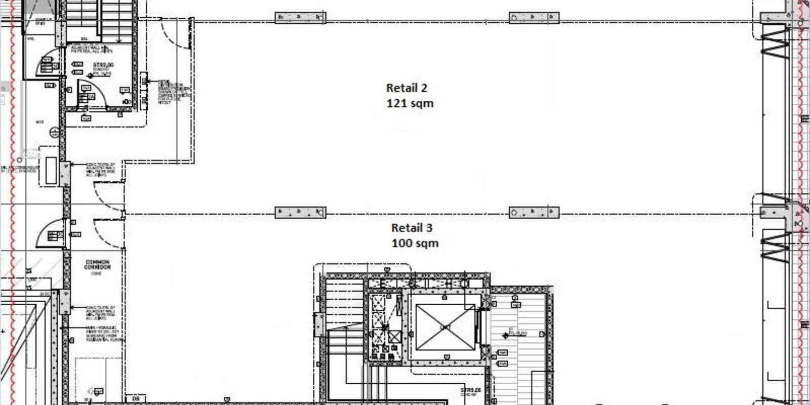
Retail 2 of approx. 121 sqm
Retail 3 of approx. 100 sqm
Or combined total area of 400 sqm
All leasing enquires to Victor Negrine 0411 316 777
or Angus Morrison 0411 299 322
Building size
400 sqm (approx)




