Property Details
Located in the brand new 'Omnia' Potts Point. This mixed use development comprises of 135 luxury apartments and 7 retail shops plus Woolworths Supermarket located on the first floor as an anchor tenant.
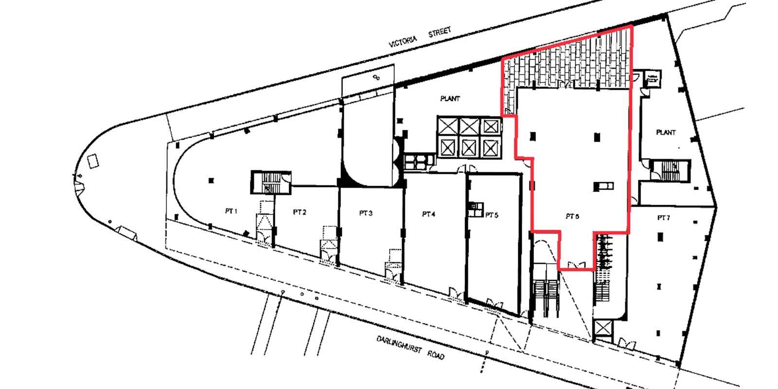
This retail shop of Approx 226sqm on ground level plus a large Terrace area of 79sqm looking over Victoria Street suitable for various uses Beauty, Retail, Medical Food.
Building size
305 sqm (approx)










