Property Details
Prestigiously located in Dover Heights, this contemporary family home is set on approximately on 585sqm of land.
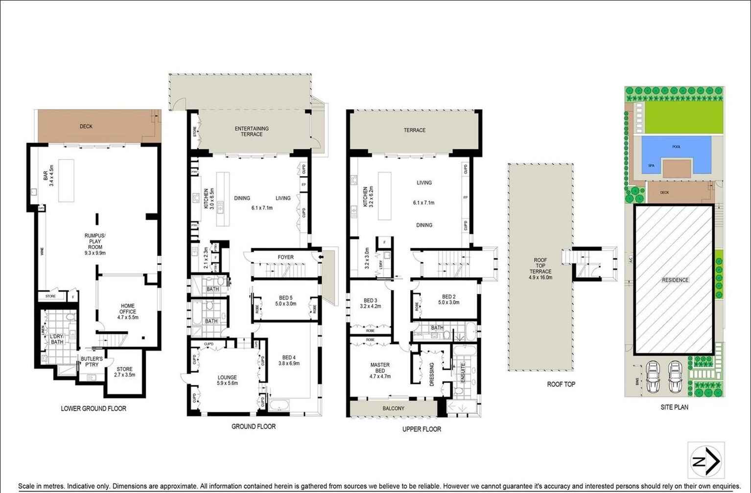
Capturing sweeping 360 degree views over the city skyline, Sydney Harbour Bridge and out to sea. The home is perfectly configured for inter-generational living, with off street parking for 2 cars. Very flexible to offer duplex style living or a grand family home.
The top level is spacious with high ceilings and ducted air-conditioning. Featuring open plan living and dining areas with gas fireplace flowing to an entertainers balcony with unobstructed city and harbour views, modern kitchen with Carrara marble island bench and internal laundry. Accommodation comprises 3 bedrooms with built-ins, master suite has walk-through dressing room, ensuite with bath, double shower and heated floors. Family bathroom with bath, shower and heated floors.
Filled with natural light, the second level features an open plan living and dining area with heated floors and a gas fireplace, flowing seamlessly to a large balcony with mesmerizing city and harbour views. Modern open plan kitchen with pantry area. Access down to pool and BBQ area through an outdoor staircase. Accommodation comprises 2 bedrooms with heated carpet, master with bath, family bathroom with bath and shower and heated floors. Second bathroom with shower and heated floors. Third large room currently used as an office with generous built-ins, could easily be a 3rd bedroom.
The lower ground level is currently used as an office and recreation space with kitchenette, large laundry with bathroom, commercial bar area leading out to an expansive BBQ area and heated heated swimming pool with in-built spa and hot/cold outdoor shower. This level can be potentially converted into a self-contained apartment.
Conveniently located, close to coastal scenic walks, Rose Bay shops, elite schools and transportation.






























