Property Details
Tucked away in a quiet cul-de-sac, this semi-detached home combines comfort with a practical layout, only minutes from local cafés, schools, transport, and world-famous Bondi Beach.
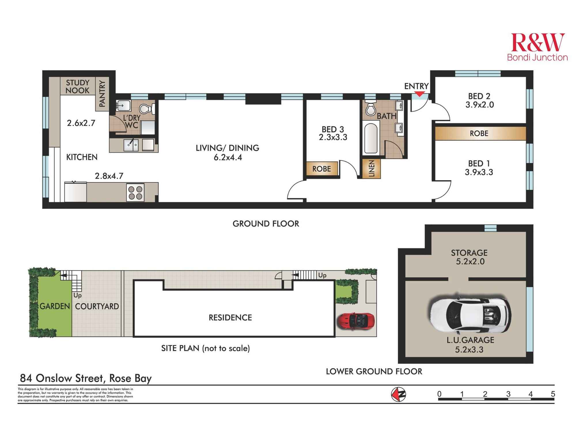
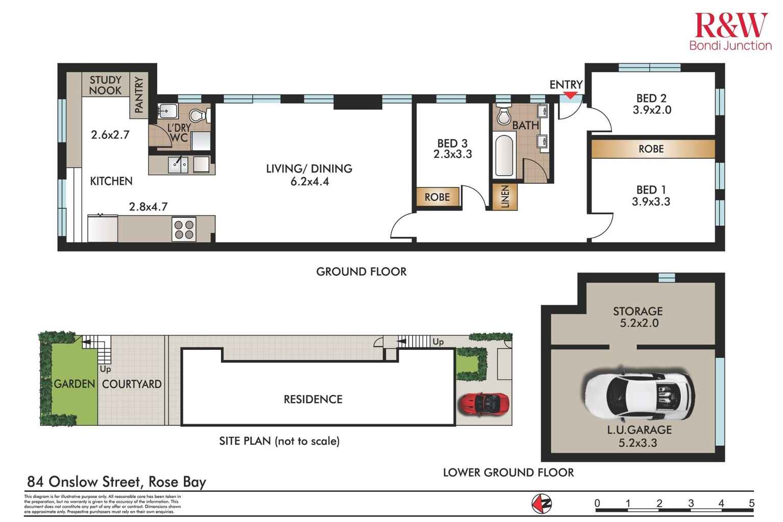
Decently presented, but lending itself for a makeover, the home features a spacious living area flowing to an elevated eat-in kitchen with generous storage, breakfast bar, dishwasher, and an integrated study nook.
The paved terrace provides the perfect setting for alfresco dining, opening onto a sunny north-facing garden framed by manicured hedging and lawn.
3 bedrooms, two with mirrored built-ins, while the bathroom offers twin vanities and a combined bath and shower. A second WC in the laundry adds extra convenience.
Key features:
- 3 Bedrooms, 2 with built-in wardrobes
- Contemporary bathroom + additional WC
- Elevated kitchen with breakfast bar, dishwasher & study nook
- Open-plan living & dining with timber floors and skylights
- North-facing paved terrace & landscaped garden
- Lock-up garage plus additional driveway parking
- Ducted & split system air conditioning
- Back-to-base alarm system
- Internal laundry
- Quiet cul-de-sac setting, close to shops, cafés & schools
Offering both lifestyle and location, this home is ideal for families, professionals, and investors looking to secure a quality property in Bondi's sought-after pocket.


























